T6 – 172m2 – TERRASSE 21M2 – COUR
Référence : JL-7170-CESARETBRUTUS69
69005 Lyon 05La description
-
Présentation du bien:
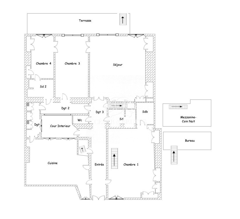
Opportunité unique au cœur du Vieux-Lyon : découvrez cet appartement traversant de 172,20 m² niché dans la prestigieuse Maison Thomassin, monument classé UNESCO.
Situé sur les quais de Saône, dans le 5eme arrondissement, il se trouve à seulement cinq minutes à pied de la Cour d’appel et de la Cour d’assises des 24 Colonnes. Le bien s’ouvre sur un vaste espace de réception orné d’un plafond peint médiéval restauré et d’un somptueux parquet de Versailles. Quatre à cinq bureaux modulables (ou chambres) profitent d’une hauteur sous plafond de 4,40 m, tandis qu’une cuisine semi-professionnelle, mêlant pierre apparente et carreaux de ciment, répond aux exigences contemporaines. Un salon de caractère, agrémenté de cheminées d’époque et de boiseries « style XVIII », prolonge l’expérience historique. À l’extérieur, une rare terrasse de 20 m², sans vis-à-vis, offre une vue plongeante sur la Saône et crée un espace de détente en plein centre-ville.
La rénovation de 2016 a combiné confort moderne et authenticité : double vitrage acoustique, chauffage individuel et matériaux nobles mis en valeur (moulures délicates, pierres apparentes).
Plus qu’un simple appartement, c’est une page d’histoire à investir : des Présidents de la République y ont déjà séjourné. Idéal pour un cabinet d’avocats, une grande famille ou un projet mixte, ce bien d’exception conjugue patrimoine, confort et potentiel d’extension.
Contactez-nous pour plus d’informations ou organiser une visite !
Joris LIMA 06/12/50/64/79
joris.lima@kwfrance.com
RSAC : 882 484 413 / EI Référence : JL-7170Honoraires à la charge du vendeur. Dans une copropriété de 28 lots. Quote-part moyenne du budget prévisionnel 2 400 €/an. Aucune procédure n'est en cours. Classe énergie D, Classe climat D Montant moyen estimé des dépenses annuelles d'énergie pour un usage standard, établi à partir des prix de l'énergie de l'année 2024 : entre 2410.00 et 3330.00 €. Les informations sur les risques auxquels ce bien est exposé sont disponibles sur le site Géorisques : georisques.gouv.fr.
Afficher toute la description
Demandez à un agent à propos de cette maison
Informations et caractéristiques
- Rubrique: Vente
- Type de bien: APPARTEMENT
- Superficie, m²: 172.00 m²
- Étage: 1
- Nombre de pièces: 6
- Chambres: 4
- Salles de bains: 3
- Salle d’eau: 0
- Cuisine: Aménagée et équipée
- Classe énergétique: D
- Système de chauffage: Gaz
- Taxe foncière: 0
- Balcon: 0
- Terrasse: 1
- Jardin: Non
- Jardin en m2: 0
- Parking: 0
- Garage: 0
Énergie et diagnostics
-
Diagnostic de performance énergétique (DPE):
-
Indice d'émission de gaz à effet de serre (GES):
Énergie et diagnostics
Diagnostic de performance énergétique (DPE)
Logement économe
Consommation (énergie primaire)
244 kWh/m².anÉmissions
44 kg CO₂/m².an
Indice d'émission de gaz à effet de serre (GES)
Faible émission de GES
Émissions
44 kg CO₂/m².an
Commodités et Caractéristiques
- Autres caractéristiques:
Lieu / Emplacement
- Localisation: 69005 LYON 05
- Ville / Département: LYON 05
Visite virtuelle
- Video : , )}
