Immobilier Professionnel à vendre Pusignan
Référence : TSC-9024-3-CESARETBRUTUS69
69330 PusignanLa description
-
Présentation du bien:
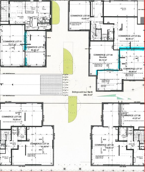
CESAR & BRUTUS vous propose à la vente ou à la location un local commercial idéalement situé au cœur d’une commune dynamique de l’Est Lyonnais.
Ce local en rez-de-chaussée d’environ 60m², livré brut de béton avec fluides en attente, offre une belle opportunité pour aménager un espace parfaitement adapté à votre activité : commerce de proximité, service, profession libérale, showroom, etc.
✨ Points forts :
•Emplacement recherché au centre d’une commune en plein essor
•Forte visibilité
•Possibilités d’aménagements personnalisés
•Accès facile et stationnement à proximitéQue vous soyez investisseur ou à la recherche d’un lieu pour lancer votre activité, ce local représente un excellent potentiel de développement.
Contactez CESAR & BRUTUS pour plus d’informations, organiser une visite ou étudier ensemble votre projet.
Thierry Sciandra
0686483598
Ref TS-9024
RSAC : 489 029 033 / EIHonoraires inclus de 4.99% HT à la charge de l'acquéreur. Prix hors honoraires 168 650 € HT. Dans une copropriété de 1 lots. Aucune procédure n'est en cours. DPE vierge. Les informations sur les risques auxquels ce bien est exposé sont disponibles sur le site Géorisques : georisques.gouv.fr. Ce bien vous est proposé par un agent commercial (Entreprise individuelle).
Votre conseiller CESAR ET BRUTUS : Thierry SCIANDRA
Afficher toute la description
Agent commercial (Entreprise individuelle)
RSAC 489 029 033
Demandez à un agent à propos de cette maison
Informations et caractéristiques
- Rubrique: Vente
- Type de bien: IMMOBILIER PRO
- Superficie, m²: 60 m²
- Étage: 0
- Nombre de pièces: 0
- Classe énergétique: VI
- Taxe foncière: 0
- Jardin: Non
- Parking: 0
- Garage: 0
Énergie et diagnostics
-
Diagnostic de performance énergétique (DPE):
-
Indice d'émission de gaz à effet de serre (GES):
Énergie et diagnostics
Diagnostic de performance énergétique (DPE)
Logement économe
Indice d'émission de gaz à effet de serre (GES)
Faible émission de GES
Commodités et Caractéristiques
- Autres caractéristiques:
Lieu / Emplacement
- Localisation: 69330 Pusignan
- Ville / Département: Pusignan
Visite virtuelle
- Video : , )}
