APPARTEMENT T1 LOT 24, 15,15m2 – 106 000 €
Référence : BF-9639-CESARETBRUTUS69
69005 LyonLa description
-
Présentation du bien:
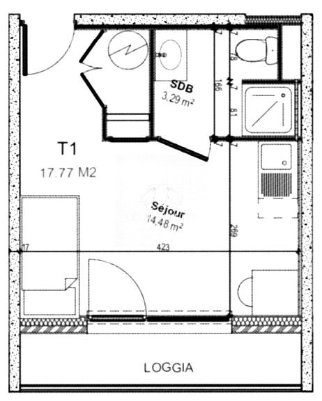
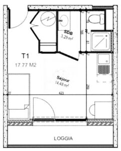
Appartement T1 de 17.93 m2 - Programme Le Perchoir - Lyon 5
La résidence Le Perchoir propose 48 studios entièrement réhabilités, au sein d’un ensemble immobilier mêlant une maison bourgeoise du XIXᵉ siècle et deux bâtiments des années 1960.Les appartements offrent des prestations de qualité : parquet, cuisine équipée, belle luminosité et vues dégagées sur un parc arboré. Les résidents bénéficient également d’espaces communs : salle de sport, espace de travail, laverie, fibre.
Un emplacement recherché, à proximité des campus, des transports (bus, tram, gare de Perrache) et de toutes les commodités.
Idéal pour investir ou habiter dans un cadre patrimonial et verdoyant.
Eligibilités LMNP
Livraison 1er trimestre 2027
Prix HAI: 129 000 € (7 184 €/m2)
Les informations sur les risques auxquels ce bien est exposé sont disponibles sur le site Géorisques : www.georisques.gouv.fr.
Prenez contact avec votre agence immobilière Cesar & Brutus pour une visite de ce bien.
Bertrand Fenaux
06.87.10.18.78
bertrand.fenaux@cesaretbrutus.com
N° RSAC: 499 334 530Référence de l'annonce: BF-9639
Honoraires à la charge du vendeur. Dans une copropriété de 48 lots. Aucune procédure n'est en cours. Non soumis au DPE. Les informations sur les risques auxquels ce bien est exposé sont disponibles sur le site Géorisques : georisques.gouv.fr.
Votre conseiller CESAR ET BRUTUS : Bertrand FENAUX
Afficher toute la description
Agent commercial (Entreprise individuelle)
Demandez à un agent à propos de cette maison
Informations et caractéristiques
- Rubrique: Vente
- Type de bien: APPARTEMENT
- Superficie, m²: 15.15 m²
- Étage: 0
- Nombre de pièces: 1
- Chambres: 0
- Salles de bains: 0
- Salle d’eau: 1
- Classe énergétique: NS
- Taxe foncière: 468€
- Balcon: 0
- Terrasse: 0
- Jardin: Non
- Jardin en m2: 0
- Parking: 0
- Garage: 0
Énergie et diagnostics
-
Diagnostic de performance énergétique (DPE):
-
Indice d'émission de gaz à effet de serre (GES):
Énergie et diagnostics
Diagnostic de performance énergétique (DPE)
Logement économe
Indice d'émission de gaz à effet de serre (GES)
Faible émission de GES
Commodités et Caractéristiques
- Autres caractéristiques:
Lieu / Emplacement
- Localisation: 69005 LYON
- Ville / Département: Lyon
Visite virtuelle
- Video : , )}
