APPARTEMENT T1, 17m2 – 131 000€
Référence : BF-9642-CESARETBRUTUS69
69005 LyonLa description
-
Présentation du bien:
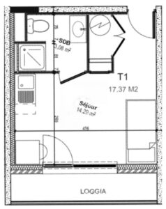
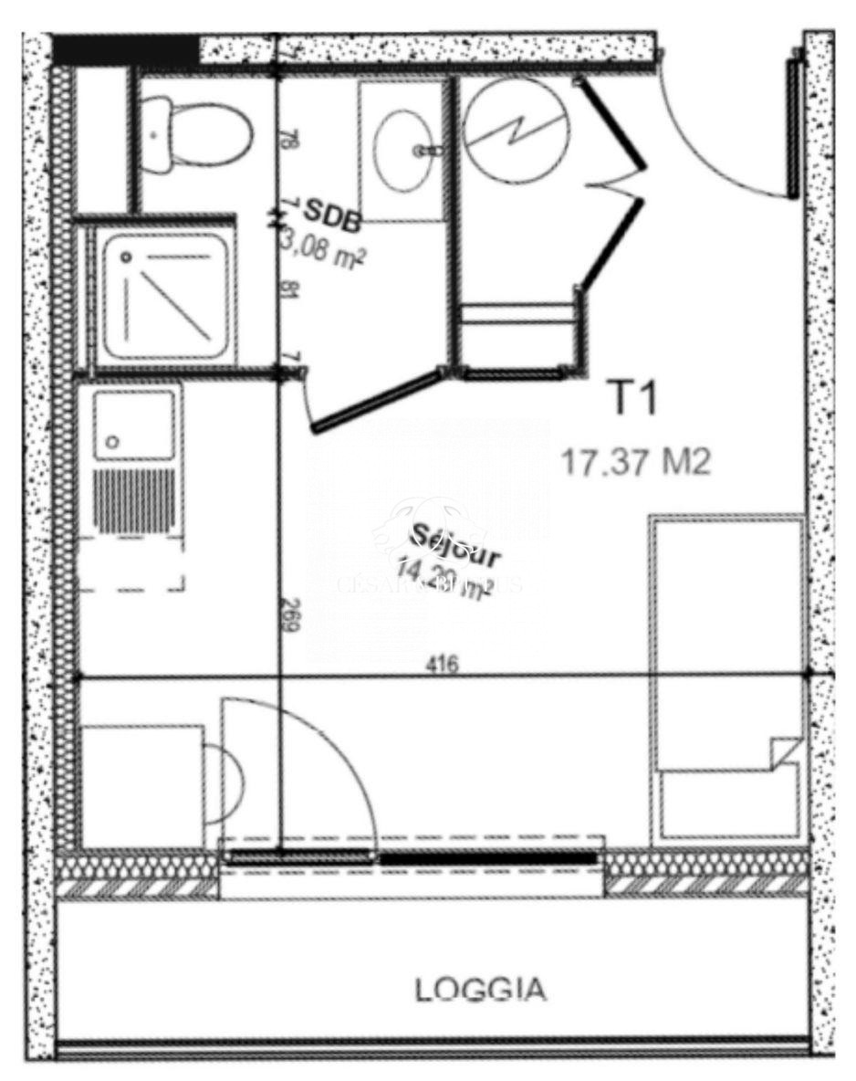
Appartement T1 - 17.37 m² - Lyon 5
Ancien réhabilité – Éligible LMNP – Livraison prévue au 2ᵉ trimestre 2027
Une opportunité d’investissement rare dans le 5ᵉ arrondissement de Lyon, idéale pour habiter ou valoriser son patrimoine.
Entièrement réhabilitée, la résidence propose 48 studios lumineux, avec parquet, cuisine équipée et prestations soignées, au sein d’un parc arboré offrant calme et vues dégagées.
Espaces communs (salle de sport, coworking, laverie, fibre) et proximité immédiate des campus, transports et de la gare de Perrache complètent l’ensemble.Non soumis au DPE
Charges annuelles: 408€
Pas de procédure en cours.
Prix HAI: 131 000 €
Les informations sur les risques auxquels ce bien est exposé sont disponibles sur le site Géorisques : www.georisques.gouv.fr.
Prenez contact avec votre agence immobilière Cesar & Brutus pour une première visite de cet appartement en vente.
Bertrand Fenaux
06.87.10.18.78
bertrand.fenaux@cesaretbrutus.com
N° RSAC: 499 334 530Référence de l'annonce: BF-9642
Honoraires à la charge du vendeur. Dans une copropriété de 48 lots. Aucune procédure n'est en cours. Non soumis au DPE. Les informations sur les risques auxquels ce bien est exposé sont disponibles sur le site Géorisques : georisques.gouv.fr.
Votre conseiller CESAR ET BRUTUS : Bertrand FENAUX
Afficher toute la description
Agent commercial (Entreprise individuelle)
Demandez à un agent à propos de cette maison
Informations et caractéristiques
- Rubrique: Vente
- Type de bien: APPARTEMENT
- Superficie, m²: 17.37 m²
- Étage: 2
- Nombre de pièces: 1
- Chambres: 0
- Salles de bains: 0
- Salle d’eau: 1
- Classe énergétique: NS
- Taxe foncière: 531€
- Balcon: 1
- Terrasse: 0
- Jardin: Non
- Jardin en m2: 0
- Parking: 0
- Garage: 0
Énergie et diagnostics
-
Diagnostic de performance énergétique (DPE):
-
Indice d'émission de gaz à effet de serre (GES):
Énergie et diagnostics
Diagnostic de performance énergétique (DPE)
Logement économe
Indice d'émission de gaz à effet de serre (GES)
Faible émission de GES
Commodités et Caractéristiques
- Autres caractéristiques:
Lieu / Emplacement
- Localisation: 69005 LYON
- Ville / Département: Lyon
Visite virtuelle
- Video : , )}
